


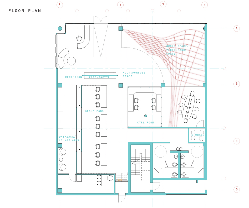
Scriabin’s School of Light and Sound takes inspiration from Prometheus, the poem of fire, which was written over 100 years ago. Scriabin’s intent with this piece was to assign colors with sound, a process that is now possible with the use of today’s MIDI data. This lighting system is intertwined with the custom Crossville “Groove” tile arrangement along the main wall, allowing students to synthesize sound with light. The micro school, a private school that integrates different ages in a class of 12 students, functions like a machine, with elements such as the workspace, control room, and concrete ramp with inset LED’s that come together and help create a community that offers Knoxville a new and experimental direction with the process of creating music. With this school, students can truly engage with each other along with technology, allowing for maximum creative expression and collaboration.
One challenge in this project was generating a set of construction documents that shows assembly details of walls, customized casework, and tile installation. Extensive research was done in terms of figuring out hardware and attachment details.


















